目前,德清已有超过40000人关注。
2023年6月德清楼市购房指南。
德清房产网0572home.com为您提供更好的购房体验。我们为您提供最新的德清楼市优惠活动信息,让您了解最全面的德清楼市动态。每月第一周,我们还将为您推送德清楼市新动态,让您第一时间掌握最新动态。如有疑问,请联系小编电话:15257257777,我们将及时为您更改。以下信息仅供参考,具体情况以开发商公布为准(排名不分先后)。
城南板块。
● 德清凤chang
交控德清交通水利·凤鸣和院。这样更简洁明了。

仙湖居士骚客会
项目介绍:
建筑类型包括建筑面积约为108m05-215m05的洋房,以及建筑面积约为230m05-266m05的排屋。
项目地址:位于玉屏路与东樵街交叉口西北处。
楼盘动态:我们的洋房和排屋正在热销中!
价格区间:洋房的均价约为22000元/平方米,而排屋的价格起始于800万元。
售楼热线:0572-8678888,这样更简洁明了。
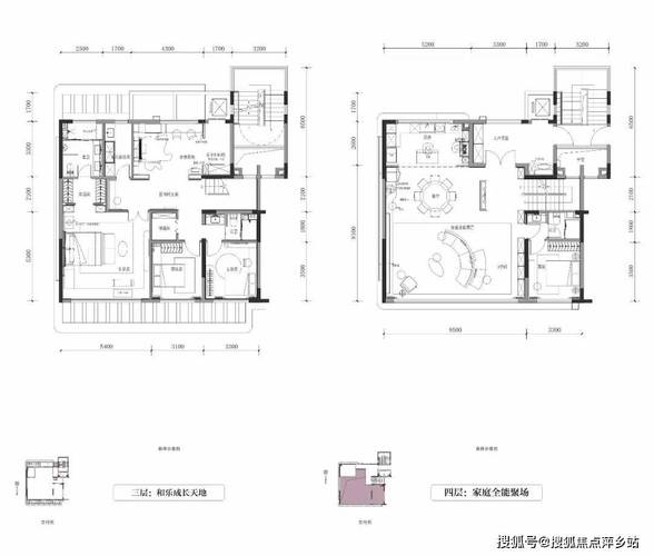
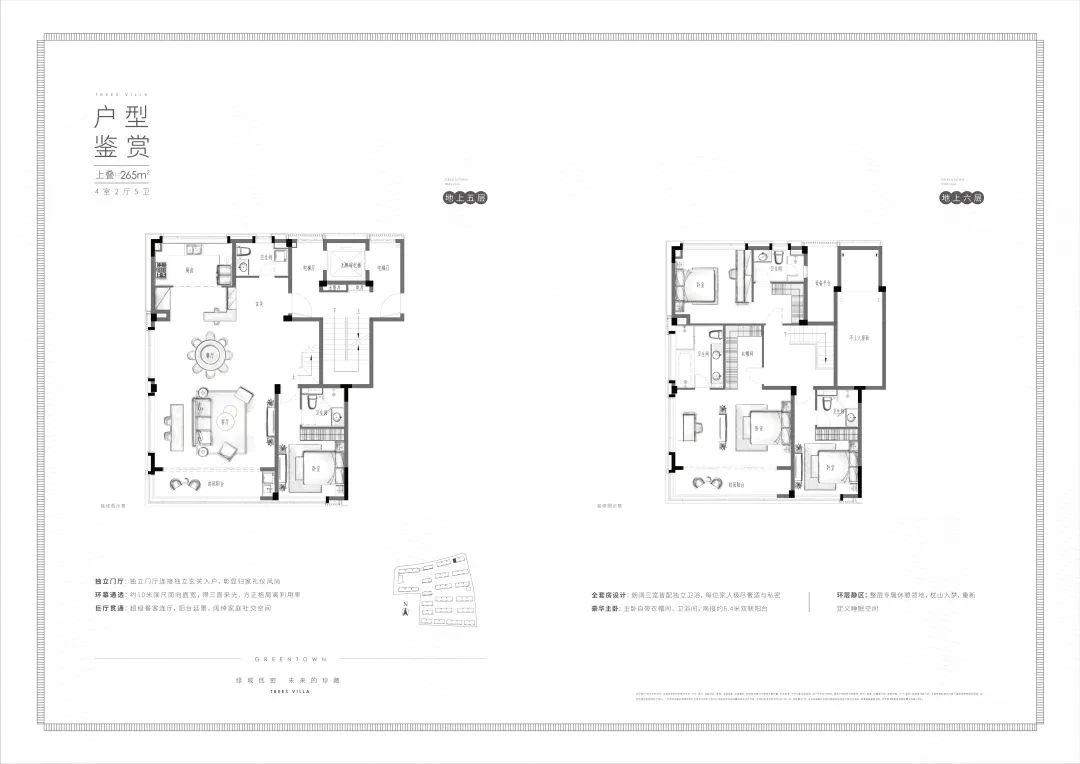
户型欣赏



点击小程序,即可查看凤鸣和院。
绿城晓月澄庐。

仙湖居士骚客会
项目介绍:
:建筑类型包括建筑面积约为158平方米的平层,以及建筑面积约为199-265平方米的叠排。
:项目地址:位于城南科技城的东樵街与河图路交叉口。
楼盘动态:叠排新品加推,销售火爆
价格范围:500-1000万元/套。
售楼热线:0572-8079999,户型赏析。
户型欣赏


点击小程序,查看晓月澄庐。
绿城春月锦庐。

仙湖居士骚客会
项目介绍:
辑:建筑类型包括建筑面积为128平方米、158平方米和227平方米的美学高层。
辑:项目地址:位于科源路与东樵街交叉口的楼盘。
楼盘动态:目前1#、2#、5#、7#、8#和9#楼已经售罄,仅剩3#楼一席。
价格区间:227平方米的均价约为2.8万元。
售楼热线:0572-8079999,户型赏析。
户型欣赏




点击小程序,查看春月锦庐。
祥新·秦澜里。这样修改后,句子更加通顺,但原意并未改变。

仙湖居士骚客会
项目介绍:
:建筑类型:建筑面积约为127平方米和139平方米的小高层。
:项目地址:位于河图路东侧和东樵街北侧。
楼盘动态:6月份开盘,139平方米的05号样板房将于6月份呈现。
价格范围:未确定。
售楼热线:0572-8319777,那么我可以帮您修改为:0572-8319777。
户型欣赏


点击小程序,查看秦澜里的信息。
城东板块。
● 德清凤chang
「中国铁建滨江·莫干山语」。

仙湖居士骚客会
项目介绍:
:建筑类型包括建筑面积约为310-400平方米的塔山东方院和建筑面积约为166-319平方米的塔山森林坡地叠排。
辑:项目地址:位于新丰路与舞阳街交叉口南300米处(华盛达学校旁)。
辑:楼盘动态:半山之上,城芯山居,楼one12#臻席抢藏,建筑面积约为319m2塔山森林坡地叠排,实景现房,媲美独栋。
辑:价格区间:合院售价700-900万/套,建筑面积约为166m2,四房叠境售价380-450万/套,建筑面积约为177-319m2,隐翠叠山售价412万/套起。
:售楼热线:0572-8256666。
加入小编的微信,您可以咨询该项目的更多信息。微信号:15257257777(享受折扣价!)
户型欣赏

点击小程序,探索莫干山语的世界。
城北板块。
● 德清凤chang
祥新·溪境府,这样更简洁明了。

仙湖居士骚客会
项目介绍:
建筑类型:建筑面积约为75-125平方米,现代高层建筑。
项目地址:位于永平北路与盛业街交叉口处。
楼盘动态:我们的示范区和样板房已经开放。
价格范围:未确定。
售楼热线:0572-8319666,这样更简洁明了。
户型欣赏



点击小程序,查看溪境府的精彩内容。
绿城、德信和宇诚·宸园。

仙湖居士骚客会
项目介绍:
:建筑类型包括建筑面积约为88-104平方米的高层建筑,以及建筑面积约为103-128平方米的洋房。
辑:项目地址:位于永平北路的宸园生活馆。
:楼盘动态:德清超级网红大盘,实景现房呈现!抓紧机会抢住88-128m2高阶洋房住区,错过不再!
:价格区间:均价约为14000元/平方米。
该项目网站的编辑可以为您提供带看导购和微信:15257257777(享受折扣价!)
点击小程序,查看宸园。
城西板块。
● 德清凤chang
德信·时代云起,这是一句简洁明了的话。

仙湖居士骚客会
项目介绍:
:建筑类型包括高层建筑面积约为89-111平方米,以及叠院建筑面积约为185-260平方米。
:项目地址:位于北湖街南侧和硅谷路西侧。
楼盘动态:目前高层19#、26#正在热销中,而20#、24#、25#、30#已经售罄。此外,叠院2#、4#、6#、11#、13#也正在热销中。
价格区间:高层1.7-1.8万元/m2,叠院2.4-2.5万元/m2。
加入小编的微信,您可以咨询该项目的更多信息。微信号:15257257777(享受折扣价!)
点击小程序,查看时代云起。
蓝城·桂语兰庭。

仙湖居士骚客会
项目介绍:
:建筑类型包括建筑面积约为186-295平方米的滨水叠排和建筑面积约为341-395平方米的山景排屋。
:项目地址:位于志远南路与舞阳街交汇处南300米处。
楼盘动态:滨水叠排2#、3#、5-8#、12#、13#、15#;山景排屋1#、2#、5#。现房呈现,热销中。
价格区间:叠排售价370万起,排屋售价625万起。
售楼热线:0572-8060000,那么我可以帮您修改为:如需了解更多详情,请拨打售楼热线:0572-8060000。
加入小编的微信,您可以咨询该项目的更多信息。微信号:15257257777(享受折扣价!)
点击小程序,查看桂语兰庭。
乾元镇,位于浙江省。
● 德清凤chang
宇诚·龙溪雅院。这样更简洁明了。

仙湖居士骚客会
项目介绍:
建筑面积约为82-139平方米的电梯洋房,建筑类型为建筑面积。
项目地址:位于德清县乾元镇东门城桥桥洞以东。
楼盘动态:2#、4#、5#、6#、8#、9#和10#正在热销中。
价格区间:洋房的均价为13000元。
加入小编的微信,您可以咨询该项目的更多信息。微信号:15257257777(享受折扣价!)
户型欣赏



编辑:德清的纯新盘进展如何?
未知。编辑:武康街道2021-040地块(德清县永安建设开发有限公司):位于武康街道岭头路西侧、北湖西街南侧,用地性质为住宅用地,出让面积65678平方米,容积率为1.01-1.1。起拍价为8789元/平方米,成交价为8789元/平方米,起拍楼面价为7990元/平方米,成交楼面价为7990元/平方米。该盘进度详情未知。
进度详情未知。编辑:武康街道2022-009地块(德清县永安建设开发有限公司):位于武康街道花石坎路东侧、北湖西街南侧,用地性质为住宅用地,出让面积为33181平方米,容积率为1.01-1.1。起拍价为8800元/平方米,成交价为8800元/平方米,起拍楼面价为8000元/平方米,成交楼面价为8000元/平方米。该地块的进度详情尚未知晓。
合伙人编辑:康乾街道2021-005-1地块(德清亚城置业有限公司):位于德清县舞阳街南侧、狮子山东侧,用地性质为商业用地,出让面积为12387平方米,容积率为1.6-1.8。起拍价为2700元/平方米,成交价为2700元/平方米,起拍楼面价为1500元/平方米,成交楼面价为1500元/平方米。该项目的进度详情尚未知晓。
编辑:招募公众号运营合伙人。