点击蓝色字体关注我们。
85 DrewStreet。
开放日:
2023年6月4日,也就是周日的下午2点至4点。
售价为609,900美元。
房屋类型:两层独立住宅
房屋建成于2013年。
房间号:0315,共4间。
05,卫生间数量:2.5。
建筑面积:1865平方米。
欢迎来到2023年6月4日(星期日)下午2点至4点,参观位于SouthPointe的85 DrewStreet。这栋房子建于2013年,由RandallHomes打造,拥有两层楼和1865平方英尺的居住空间。现在接受看房,报价即时处理!
这栋房子拥有4间卧室和2.5间浴室,为您提供了充足的居住空间。进门后,您会立刻被开放式的设计所吸引。左侧是一个宽敞的书房区域,右侧则是开放式的客厅和带高端不锈钢家电的用餐厨房。无论是休闲娱乐还是家庭聚会,都能满足您的需求。
第二层有4间卧室,包括一个宽敞的主卧室和一个四件套的套间浴室。房子配备了摄像头和动态感应器的全面安防系统(这些设备随房赠送)。现任业主精心维护了这栋房子的高档升级,包括复合地板、天燃气壁炉和8英尺高的主楼天花板等。这个房子靠近SouthPointeSchool,非常适合有孩子的家庭。立即预约看房,亲身体验这栋房子的美好。
靠近小公园和社区购物中心。
环境好、交通方便、生活舒服!
请尽快联系曼尼托邦地产/ManitopiaRealty的经纪人,预约看房。
































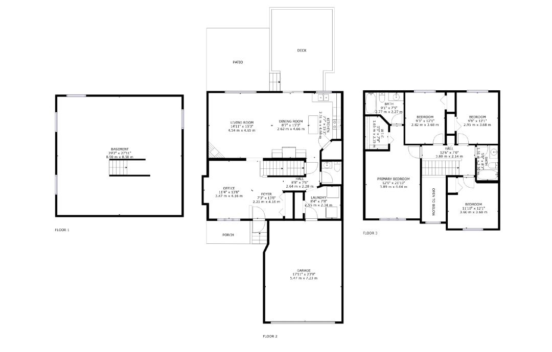
户型图。

(注:户型图中的数据是通过曼尼托邦地产采用的空间扫描技术采集并还原套内尺寸得出的,与实际面积可能会有所不同。如需获取精确数据,请自行核实尺寸。)




曼尼托邦地产
曼尼托邦地产有限公司。
地址:位于ChevrierBlvd上的200-1460号房间。
温尼伯市,位于加拿大曼尼托巴省,邮政编码为R3T1Y7。
电话号码:204.293.4476。
电子邮件:[email protected]
网址:www.manitopia.ca。

【曼尼托邦地产】是一家位于温尼伯的地产经纪公司,由贾俊华先生创立。我们专注于为当地居民提供房产市场服务,并由专业的房产经纪人组成。我们致力于营销和销售温尼伯本地房产,为客户提供购房置业、房产投资等房地产相关业务。自2015年以来,我们一直致力于为在温尼伯的华人客户提供优质的买卖房产服务,并积累了良好的口碑。 我们的宗旨是维护客户的利益,提供认真的态度和专业的服务。我们致力于为所有客户提供美好的购房和售房体验。选择【曼尼托邦地产】,选择专业的地产服务,享受美好生活。
